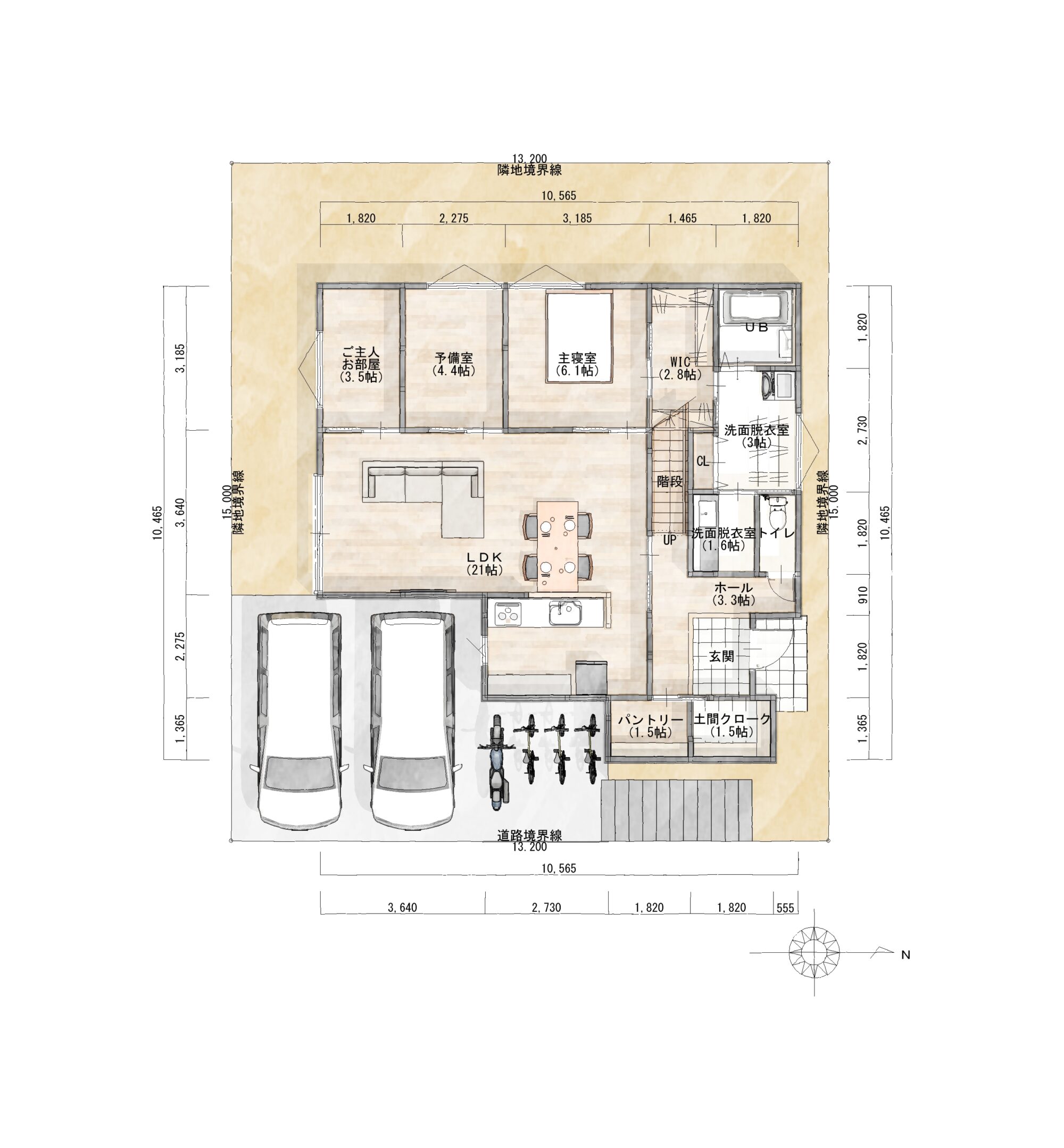
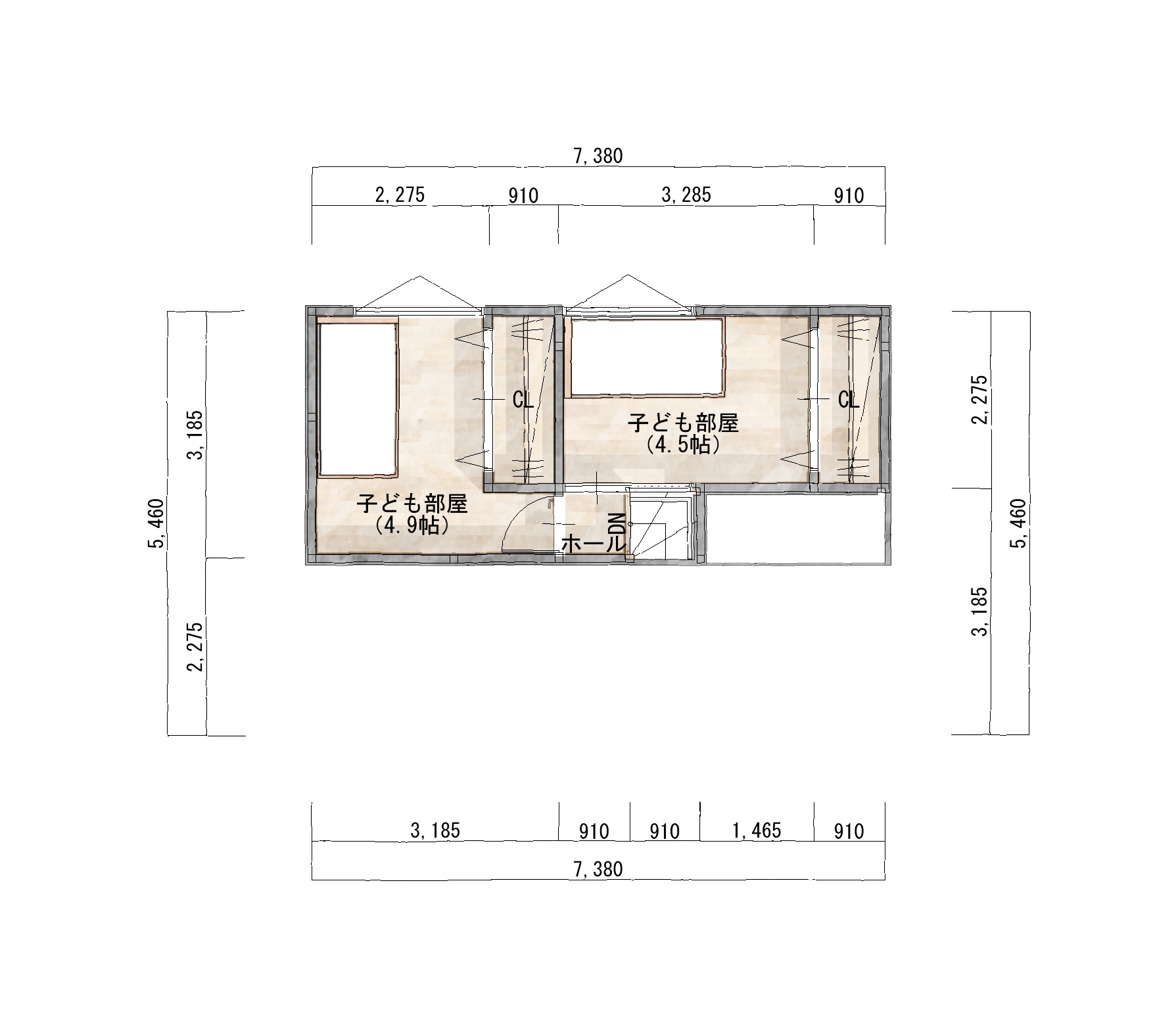
1階で暮らしが完結する家
※画像はイメージです。
| 間取り | 5LDK |
|---|---|
| 敷地面積 | 200㎡ (60.50坪) |
| 延床面積 | 114.40㎡(34.61坪) |
| 建蔽率 | 60% |
| 容積率 | 200% |
| 用途地域 | 第一種住居地域 |
| エリア | 八幡市 |
| 土地の形状 | 正方形に近い土地 |
| 方位 | 東 |
| リビング | 1階 |


1階で生活が完結する住まい。
主寝室とご主人の部屋も1階に配置し、将来を見据えた安心の間取りに。空間のつながりを大切にした、暮らしやすさ重視の間取りです。
FLOOR PLAN
間取り集
※画像はイメージです。
| 間取り | 5LDK |
|---|---|
| 敷地面積 | 200㎡ (60.50坪) |
| 延床面積 | 114.40㎡(34.61坪) |
| 建蔽率 | 60% |
| 容積率 | 200% |
| 用途地域 | 第一種住居地域 |
| エリア | 八幡市 |
| 土地の形状 | 正方形に近い土地 |
| 方位 | 東 |
| リビング | 1階 |


1階で生活が完結する住まい。
主寝室とご主人の部屋も1階に配置し、将来を見据えた安心の間取りに。空間のつながりを大切にした、暮らしやすさ重視の間取りです。