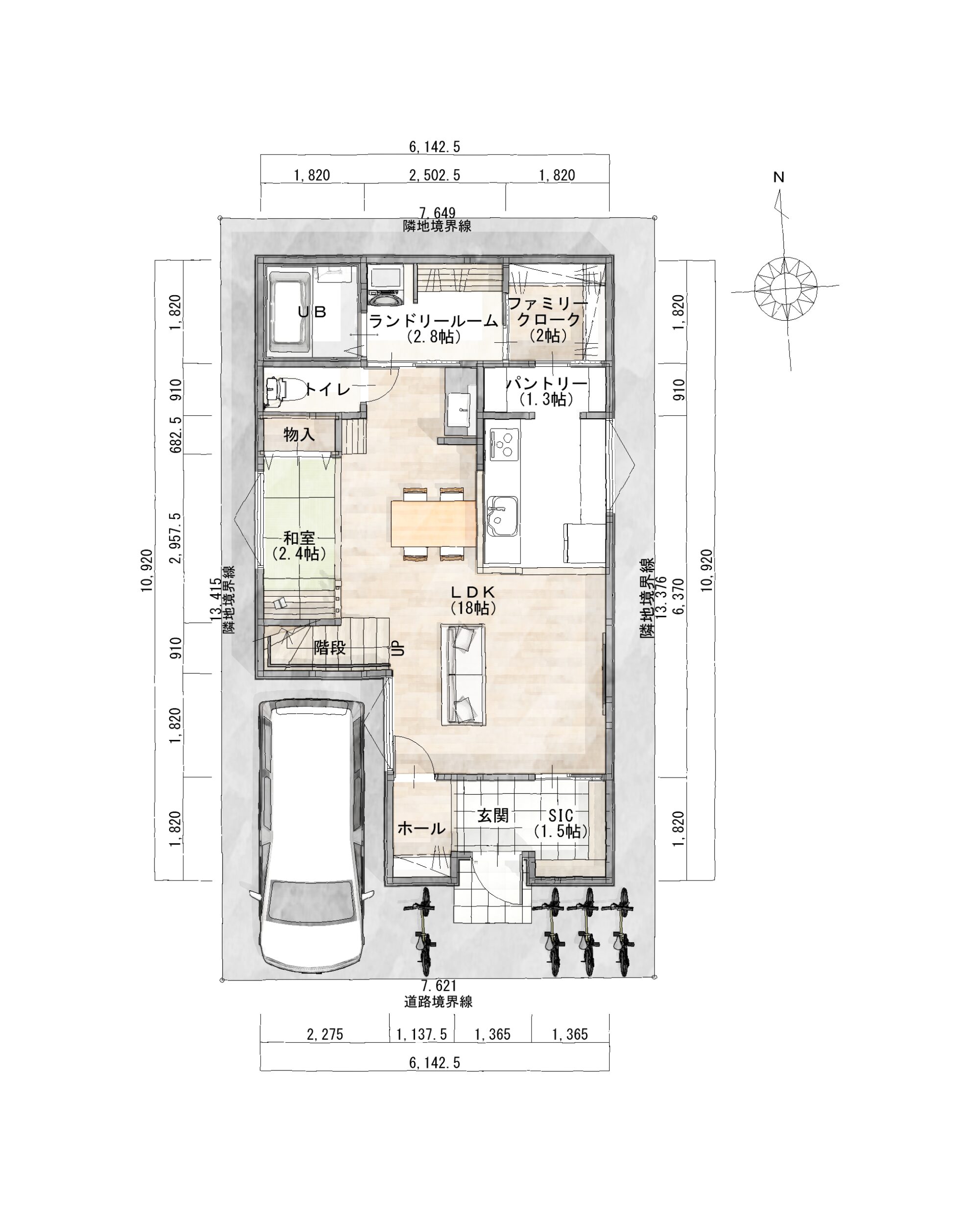
回遊できる家事楽の家
※画像はイメージです。
| 間取り | 3LDK+ロフト |
|---|---|
| 敷地面積 | 102.34㎡(30.96坪) |
| 延床面積 | 101.64㎡(30.75坪) |
| 建蔽率 | 60% |
| 容積率 | 200% |
| 用途地域 | 第一種中高層住居専用地域 |
| エリア | 京都市伏見区 |
| 土地の形状 | 長方形 |
| 方位 | 南 |
| リビング | 1階 |



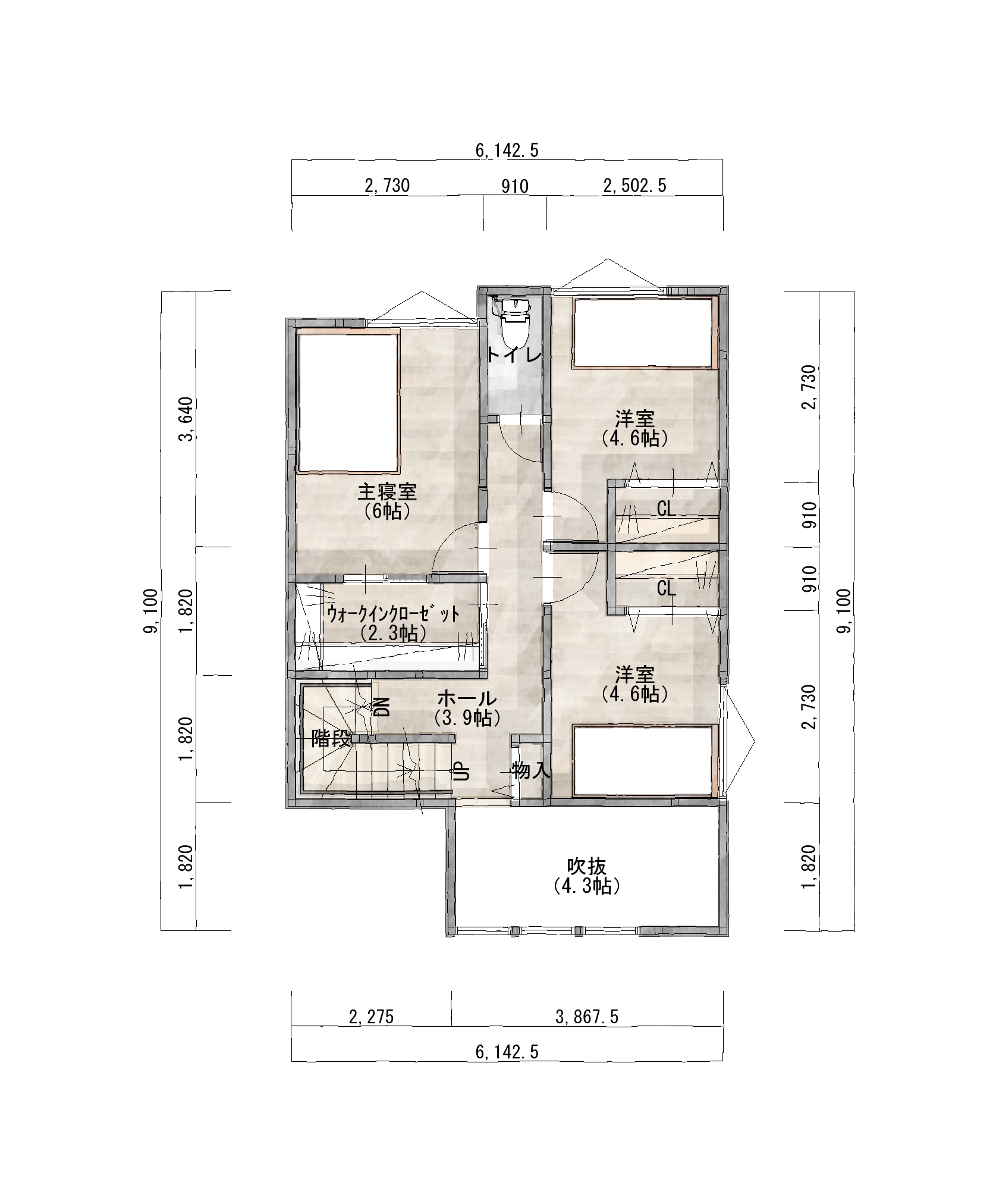
FLOOR PLAN
間取り集
※画像はイメージです。
| 間取り | 3LDK+ロフト |
|---|---|
| 敷地面積 | 102.34㎡(30.96坪) |
| 延床面積 | 101.64㎡(30.75坪) |
| 建蔽率 | 60% |
| 容積率 | 200% |
| 用途地域 | 第一種中高層住居専用地域 |
| エリア | 京都市伏見区 |
| 土地の形状 | 長方形 |
| 方位 | 南 |
| リビング | 1階 |


