奥行のある土地を活かした3階建ての家
※画像はイメージです。
| 間取り | 4LDK |
|---|---|
| 敷地面積 | 92.36㎡(27.94坪) |
| 延床面積 | 139.86㎡(42.31坪) |
| 建蔽率 | 70% |
| 容積率 | 160% |
| 用途地域 | 準工業地域 |
| エリア | 京都市南区 |
| 土地の形状 | 長方形 |
| 方位 | 西 |
| リビング | 2階 |



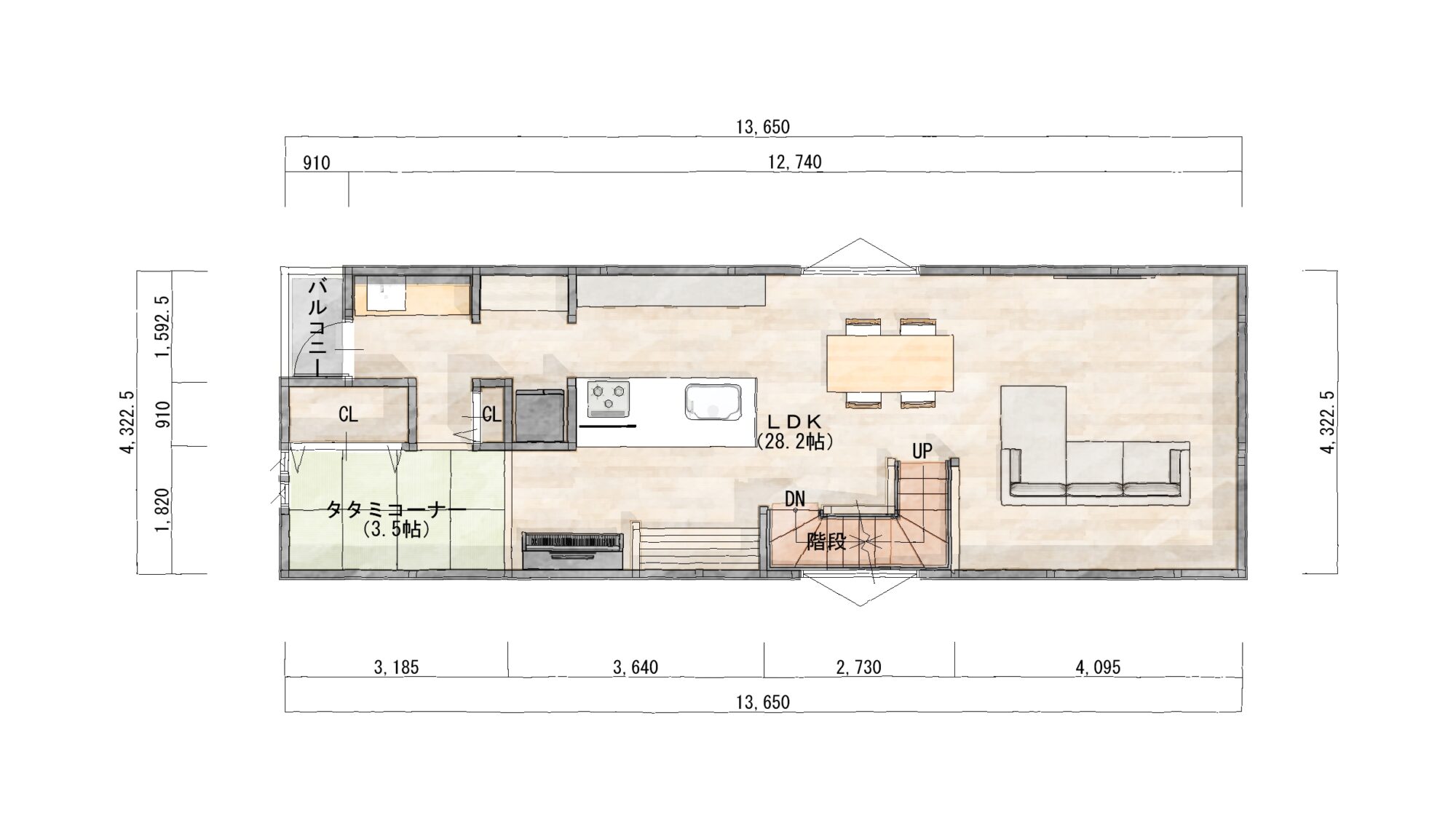
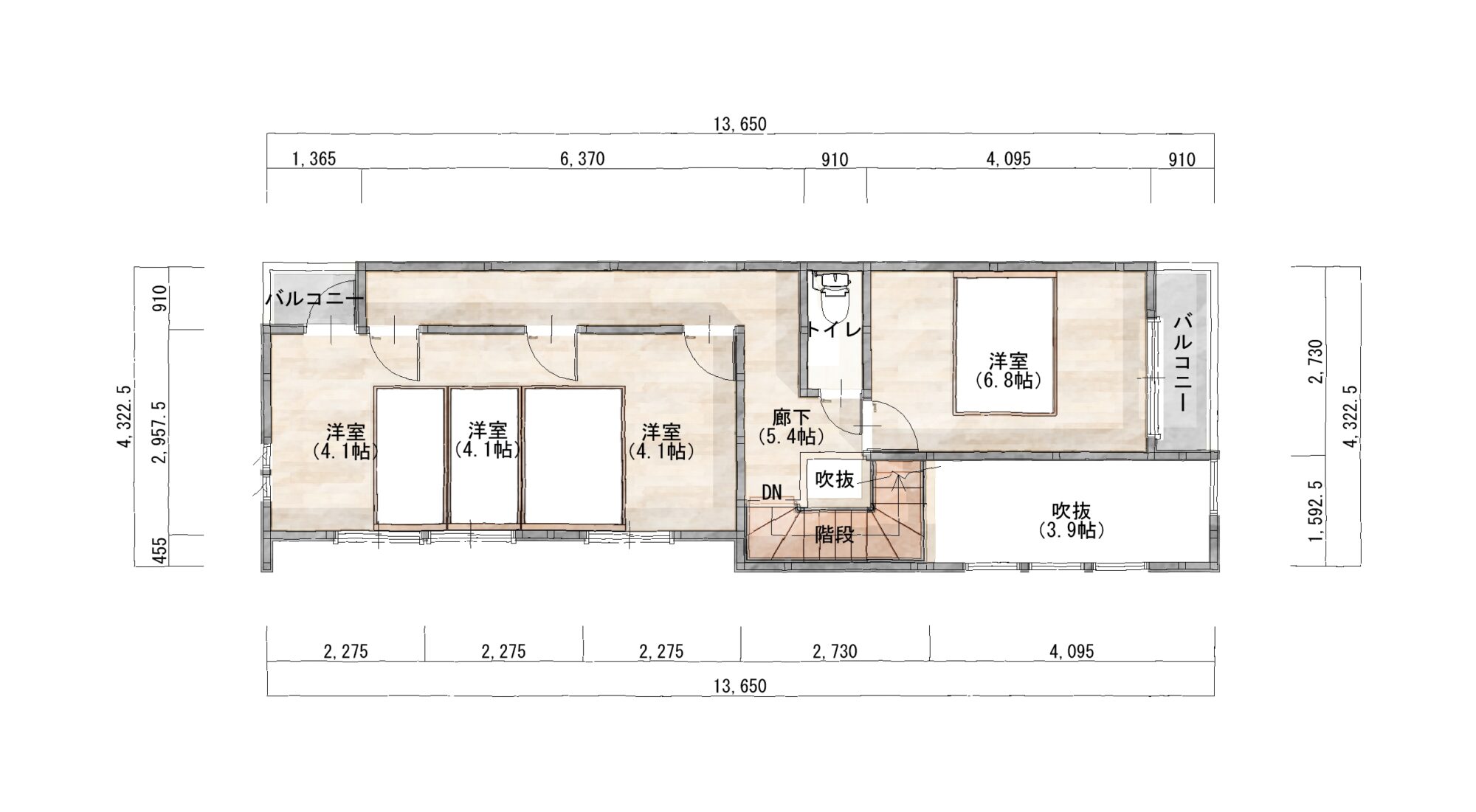
奥行のある敷地を最大限に活用した3階建て。
広い玄関と28帖LDKで開放感を確保し、将来3部屋に分けられる可変型の子ども部屋も備えた間取り事例です。
FLOOR PLAN
間取り集
※画像はイメージです。
| 間取り | 4LDK |
|---|---|
| 敷地面積 | 92.36㎡(27.94坪) |
| 延床面積 | 139.86㎡(42.31坪) |
| 建蔽率 | 70% |
| 容積率 | 160% |
| 用途地域 | 準工業地域 |
| エリア | 京都市南区 |
| 土地の形状 | 長方形 |
| 方位 | 西 |
| リビング | 2階 |



奥行のある敷地を最大限に活用した3階建て。
広い玄関と28帖LDKで開放感を確保し、将来3部屋に分けられる可変型の子ども部屋も備えた間取り事例です。