将来を見据えた1階完結型の家
※画像はイメージです。
| 間取り | 3LDK+ロフト |
|---|---|
| 敷地面積 | 78.14㎡(23.64坪) |
| 延床面積 | 83.45㎡(25.24坪) |
| 建蔽率 | 60% |
| 容積率 | 200% |
| 用途地域 | 第一種住居地域 |
| エリア | 京都市北区 |
| 土地の形状 | 変形地 |
| 方位 | 北 |
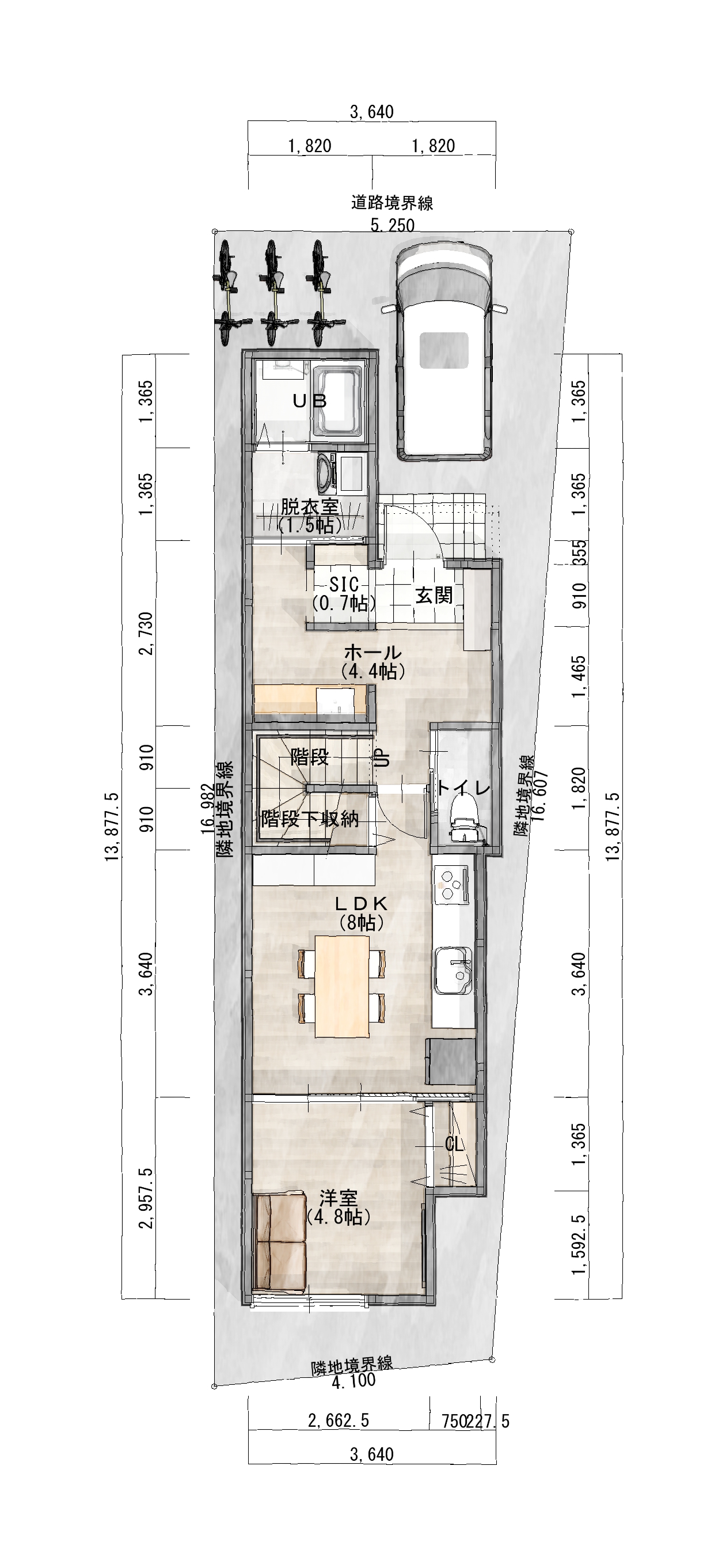
| リビング | 1階 |



1階に洋室と水回りをまとめ、将来はワンフロアで生活できる1階完結型プラン。
2階には洋室とWIC、9.5帖のロフト空間を確保し、家族構成の変化にも柔軟に対応できる住まいです。
FLOOR PLAN
間取り集
※画像はイメージです。
| 間取り | 3LDK+ロフト |
|---|---|
| 敷地面積 | 78.14㎡(23.64坪) |
| 延床面積 | 83.45㎡(25.24坪) |
| 建蔽率 | 60% |
| 容積率 | 200% |
| 用途地域 | 第一種住居地域 |
| エリア | 京都市北区 |
| 土地の形状 | 変形地 |
| 方位 | 北 |
| リビング | 1階 |



1階に洋室と水回りをまとめ、将来はワンフロアで生活できる1階完結型プラン。
2階には洋室とWIC、9.5帖のロフト空間を確保し、家族構成の変化にも柔軟に対応できる住まいです。