アイアン階段が映える、開放的な玄関の家
※画像はイメージです。
| 間取り | 3LDK |
|---|---|
| 敷地面積 | 49.50㎡(14.97坪) |
| 延床面積 | 101.44㎡(30.69坪) |
| 建蔽率 | 80% |
| 容積率 | 600% |
| 用途地域 | 商業地域 |
| エリア | 京都市南区 |
| 土地の形状 | 長方形 |
| 方位 | 北 |
| リビング | 2階 |



コンパクトな敷地を活かした3階建ての間取りプランです。
玄関には土間収納を設け、靴やアウトドア用品がすっきり収まる設計に。帰宅後すぐに入浴できる動線も意識しています。
2階のLDKは約15帖の広さを確保し、キッチンから全体を見渡せるレイアウトに。リビングの一角にはヌックスペースを設け、くつろぎや読書、子どもの遊び場など、暮らしに合わせて使える居場所をつくりました。
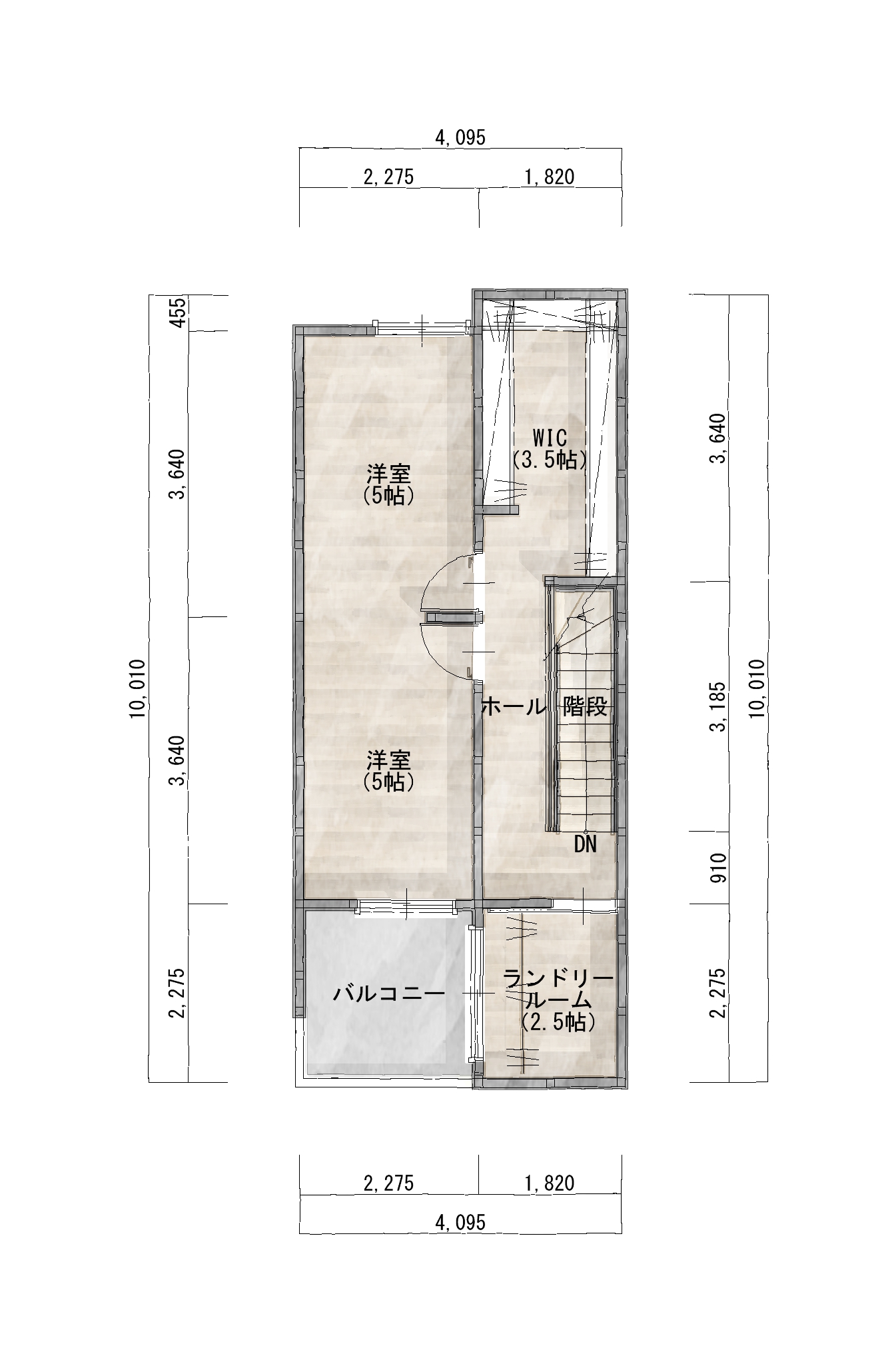
3階には洋室とWIC、ランドリールームを配置。バルコニーとつながる設計で、洗濯物を干すスペースとして活用しやすく、室内干しや仮置きにも使える空間になっています。
洋室は将来2部屋に分けて使えるよう想定したつくりで、子どもの成長やライフスタイルの変化にも対応しやすい間取りです。