リビングに家族が集まる家
※画像はイメージです。
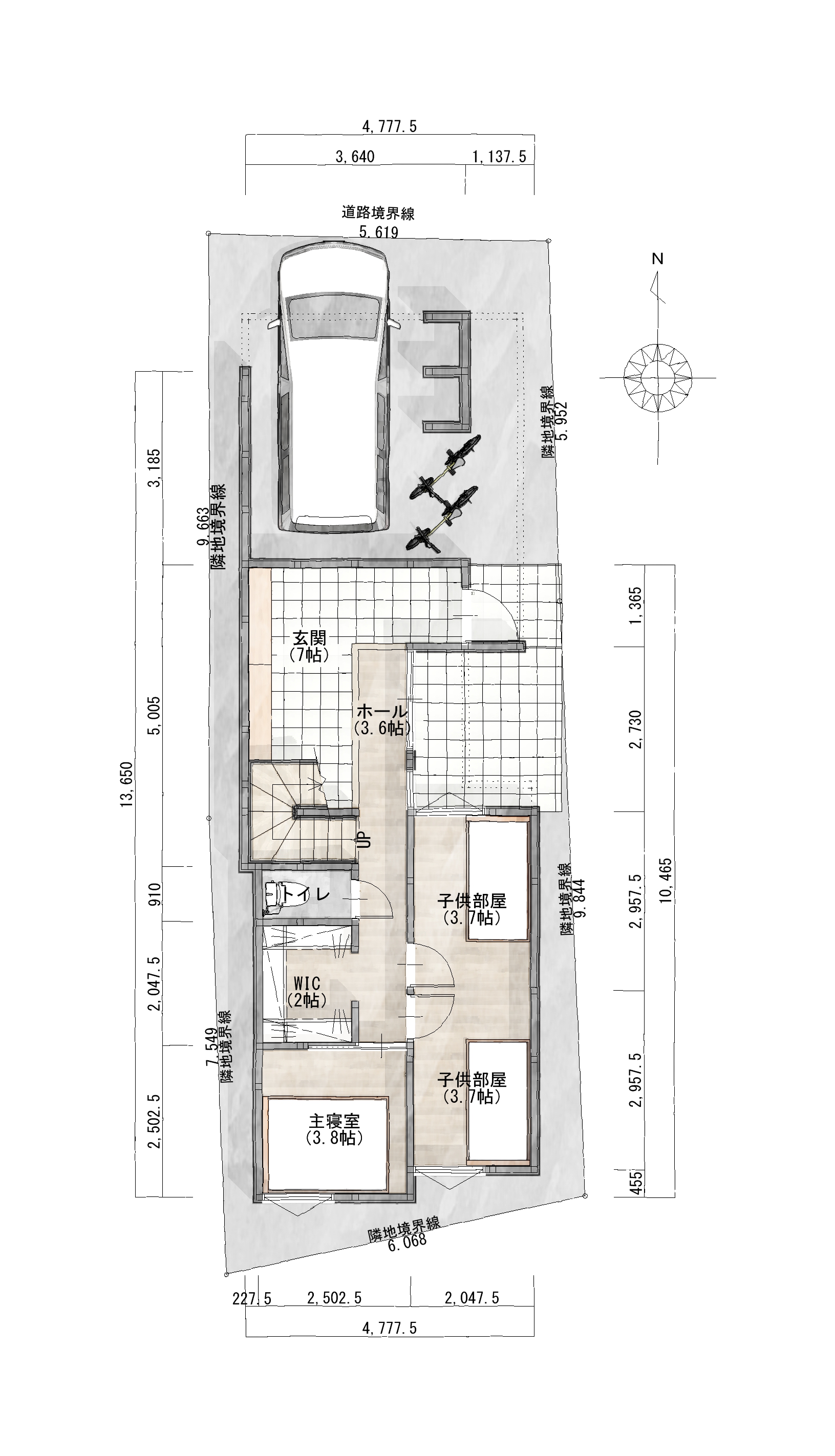
| 間取り | 3LDK+ロフト |
|---|---|
| 敷地面積 | 96.54㎡(29.20坪) |
| 延床面積 | 94.81㎡(28.68坪) |
| 建蔽率 | 70% |
| 容積率 | 160% |
| 用途地域 | 第一種住居地 |
| エリア | 京都市右京区 |
| 土地の形状 | 長方形 |
| 方位 | 北 |
| リビング | 2階 |



1階に主寝室や子ども部屋などの個室をまとめ、2階にリビング・ダイニング・キッチンと水回りを集約。
光や風を取り込みやすく、プライバシーにも配慮した暮らしをイメージしています。
キッチンからWIC・洗面脱衣室へとつながる動線を設け、料理・洗濯・収納までを効率よく行える家事ラクな間取りに。
リビングには小上がり、さらにロフトも設けることで、収納やくつろぎ、趣味スペースなど暮らしに合わせて使える余白も確保しました。