趣味を楽しむ家
※画像はイメージです。
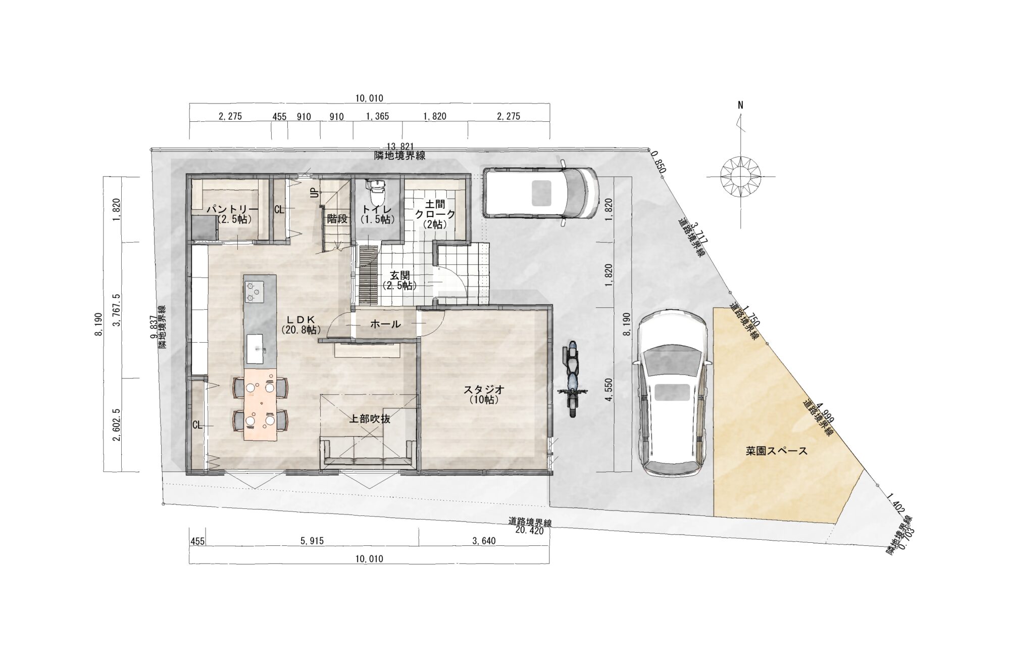
| 間取り | 3LDK |
|---|---|
| 敷地面積 | 166.91㎡(50.49坪) |
| 延床面積 | 131.61㎡(39.81坪) |
| 建蔽率 | 60% |
| 容積率 | 200% |
| 用途地域 | 第1種中高層住居専用地域 |
| エリア | 京都市山科区 |
| 土地の形状 | 変形地 |
| 方位 | 東 |
| リビング | 1階 |


FLOOR PLAN
間取り集
※画像はイメージです。
| 間取り | 3LDK |
|---|---|
| 敷地面積 | 166.91㎡(50.49坪) |
| 延床面積 | 131.61㎡(39.81坪) |
| 建蔽率 | 60% |
| 容積率 | 200% |
| 用途地域 | 第1種中高層住居専用地域 |
| エリア | 京都市山科区 |
| 土地の形状 | 変形地 |
| 方位 | 東 |
| リビング | 1階 |

