京都市伏見区深草瓦町 新築戸建て




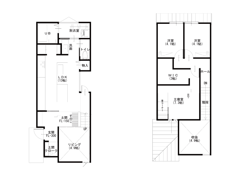
PLAN間取り
OUTLINE物件概要
| 物件名 | 京都市伏見区深草瓦町 新築戸建て |
|---|---|
| 所在地 | 京都市伏見区深草瓦町 |
| 販売価格 | 4,880万円 |
| 土地面積 | 107.6m2(32.54坪) |
| 延床面積 | 83.75m2(25.33坪) |
| 学区 | 深草小学校、深草中学校 |
| 最寄り | 京阪本線「藤森」歩12分、JR奈良線「JR藤森」歩18分 |
| 引き渡し時期 | 相談 |
| 建ぺい率・容積率 | 50%・80% |
| 間取り | 3LDK |
| 設備 | 公営水道、本下水、都市ガス |
| 道路 | 南側3.2m幅、接道幅5.7m |
| 私道負担 | 無 |
| 取引形態 | 売主 |
| 完成時期 | 2026年1月 |
| 免許証番号 | 京都府知事(3)第13073号 (公社)全日本不動産協会会員 |
| 土地の権利形態 | 所有権 |
| 用地地域 | 第一種低層住居専用地域 |
| その他 | 景観法による規制有、高度地区 |